Brama dla personelu - szczegóły techniczne
Zdjęcia
Pobierz PDF
|
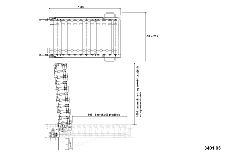
Transport ładunków Ładunki muszą być suche i mieć gładką podstawę. Najlepiej do tego celu nadają się pojemniki z kartonu oraz tworzyw sztucznych. Obciążenie jednej rolki nie może przekraczać 10 kg. Waga jednej paczki nie może przekraczać 30 kg. Warunki środowiskowe Urządzenie musi pracować wewnątrz budynku w suchym otoczeniu o dopuszczalnej temperaturze od 5° do 40°C. Waga modułu - kg
|
||||||||||||||||||










